Чтобы начать процесс определения границ земельного участка, необходимо нанять специалистов, которые проведут вас через все этапы межевания. Они составят подробный план, проследят за тем, чтобы все необходимые документы были в порядке и соответствовали действующему законодательству. Этот процесс позволит вам избежать возможных споров и не допустить нарушений законодательства при проведении работ.
На первом этапе проводится тщательная оценка земли, в том числе уточняются границы участка. После этого специалисты составят точную карту, на которой будут обозначены эти границы. Очень важно, чтобы этот процесс был проведен в соответствии с законом, поскольку любые ошибки или упущения могут привести к осложнениям в будущем. Убедитесь, что в договоре с геодезистом прописаны все условия, включая цену и сроки оказания услуг.
По завершении межевания вы получите официальные документы, подтверждающие границы вашего участка. Очень важно проверить точность этих документов, поскольку они будут иметь решающее значение для разрешения любых споров или юридических вопросов. Если вы находитесь в Касимове или его окрестностях, обязательно проконсультируйтесь с местными специалистами, знающими специфику региона.
Следуя этим рекомендациям и сотрудничая с опытными профессионалами, вы обеспечите беспроблемное и юридически грамотное решение вопросов, связанных с межеванием земельных участков. Правильно проведенное межевание обеспечит как юридическую, так и финансовую безопасность будущих сделок или проектов застройки, связанных с вашим участком.
Наши преимущества
Мы предлагаем услуги, направленные на решение вопросов, связанных с границами земельных участков. Если вы столкнулись с трудностями, связанными с линиями собственности или неясными участками, наша команда обладает необходимым опытом для эффективного решения этих проблем. Мы используем структурированный алгоритм, чтобы провести вас через каждый этап процесса, гарантируя точные результаты.
- Четкие и точные расчеты границ, основанные на достоверных данных.
- Индивидуальные решения для каждого конкретного проекта, независимо от того, где вы находитесь — в Рязани или Касимове.
- Мы гарантируем, что все аспекты договора и необходимые расчеты будут учтены, что позволит избежать возможных проблем в будущем.
Сотрудничая с нами, вы получите плавный процесс, в котором приоритет отдается минимизации рисков последующих споров. Разделяя ваши потребности, мы можем гарантировать, что проект будет реализован в соответствии с вашими требованиями. Наша команда старательно работает над соблюдением сроков, сохраняя при этом приемлемые расходы.
- Мы предлагаем различные виды контрактов, чтобы обеспечить гибкость ваших потребностей.
- Наши профессионалы выполняют все этапы проекта, от первичной консультации до окончательной сдачи, позволяя вам сосредоточиться на других задачах.
- Мы обеспечиваем полную прозрачность на всех этапах, гарантируя, что вы будете информированы на каждом этапе.
С нами вы можете рассчитывать на быстрые и эффективные решения, которые не только сэкономят ваше время, но и предотвратят дорогостоящие последствия в будущем. Позвольте нам помочь вам сориентироваться в любых вопросах, связанных с недвижимостью, и позаботиться о том, чтобы все было улажено эффективно.
В AIP вы получите
Благодаря нашим услугам вы получите точные данные о земельных участках, что позволит вам принимать взвешенные решения. Наши специалисты своевременно отвечают на ваши вопросы, решая любые проблемы, связанные с юридическими вопросами или планами проекта. Вы получите подробную информацию о ценах, что позволит вам оценить стоимость необходимых работ. Мы предоставляем гарантии качества и своевременного выполнения услуг, обеспечивая соответствие всех проектов действующим нормам.
Наши специалисты проводят оценку в Ржани, предоставляя подробные отчеты о границах земельных участков и любых возможных нарушениях в соответствии с законодательством. Стоимость наших услуг является конкурентоспособной, что отражает высокое качество выполняемых работ. На протяжении всего процесса вы будете в курсе всех событий и получите профессиональную консультацию для решения любых возникающих вопросов. Если вам нужно понять, какие виды услуг мы предлагаем или какова их стоимость, вы получите необходимую информацию в считанные минуты!
Наша команда готова помочь вам решить любые вопросы, возникающие в ходе реализации проекта. Мы гарантируем, что все этапы — от первоначального обследования до подготовки окончательного отчета — будут выполнены с точностью и эффективностью, при этом сохраняя прозрачность цен и предоставляемых услуг. Вы можете доверить нашим специалистам все аспекты вашего земельного проекта, обеспечив полное соответствие законодательству и исключив потенциальные риски.
Цены и виды земельных работ в Рязани

В Рязани стоимость земельных услуг варьируется в зависимости от вида и сложности работ. Наиболее распространенными видами земельных работ являются межевание, топографическая съемка и межевание границ. В зависимости от размера и местоположения участка цены могут начинаться от 8 000 рублей и доходить до 25 000 рублей за более сложные процедуры.
Наши специалисты помогут вам оценить необходимые работы и составят точную смету. Если вам нужен подробный расчет, мы можем организовать бесплатную консультацию. Цена также зависит от скорости обслуживания: срочные заказы часто требуют дополнительной оплаты, но можно договориться о рассрочке платежа, если проект выходит за рамки вашего текущего бюджета.
Если у вас есть особые требования к земельному участку, например, разделение или объединение участков, будьте готовы к подробному плану и многоэтапному процессу. Каждый этап, например установление границ, измерение земли и оформление юридической документации, имеет свою стоимость. Эти этапы могут занять несколько дней или недель, в зависимости от объема работы и наличия специалистов.
Важно, чтобы в процессе работы не было нарушений в документации и границах. Наши специалисты обязательно справятся с любым возникшим вопросом, эффективно его решив. Вы получите полную гарантию на все оказанные услуги. Если в процессе работы будут допущены какие-либо ошибки, мы возьмем на себя ответственность и исправим их без дополнительной оплаты.
Если вам необходимо решить проблему согласования границ или у вас есть сомнения в правильности подхода к разделу земельного участка, смело обращайтесь к нам. Мы предоставим вам четкое и ясное описание необходимых работ и их стоимости, что поможет вам принять взвешенное решение и выполнить работу профессионально в Рязани.
Необходимые документы
Для успешного проведения процедуры раздела земельного участка необходимы определенные документы. К ним относится подробный план территории с указанием точных границ и размеров. Необходимо подписать договор на оказание услуг с указанием договоренностей между сторонами, включая условия оплаты и рассрочки, если таковая предусмотрена.
Нарушение установленного порядка может привести к юридическим последствиям. Также необходимо предоставить данные о типе земли, уточнив, является ли она сельскохозяйственной, жилой или промышленной. Если земельный участок был ранее разделен или изменен, необходимо предоставить соответствующие исторические данные, чтобы убедиться в четкости границ.
Еще один важный документ — заявление на получение услуг, предоставляемых местными властями или лицензированными агентствами, такими как AIIP (Агентство по благоустройству земельных участков). Они занимаются официальным признанием и подтверждением факта раздела земли. Очень важно предоставить все необходимые документы, чтобы избежать каких-либо задержек или осложнений в процессе.
Если в процессе раздела возникнут споры или разногласия, могут потребоваться документы, связанные с расчетом стоимости или оценкой участка. Они помогут разрешить вопросы, связанные с затратами или расхождениями в оценке. Для земельных участков, расположенных в Риазани или других регионах, могут существовать местные требования и процедуры, которым необходимо следовать.
В целом, наиболее часто задаваемые вопросы касаются уточнения того, какие документы необходимы, и понимания последствий возможных нарушений в ходе процесса. Рекомендуется тщательно изучить все необходимые документы и проконсультироваться с юристом, чтобы убедиться, что все аспекты рассмотрены правильно.
Этапы работы
Первый этап включает в себя определение и проверку границ участка. Четкое и ясное понимание границ участка необходимо для последующих этапов. Очень важно собрать всю необходимую документацию, чтобы обеспечить надлежащее оформление. План будет включать в себя измерения, сведения о юридическом владении и исторические данные, связанные с использованием земли.
На следующем этапе необходимо подготовить подробный план. Эта съемка поможет определить координаты и периметр участка. Будет проведен тщательный расчет площади, что обеспечит точность измерений в целом. На этом этапе команда профессионалов решит все возникающие проблемы, уточнит вопросы, связанные с границами участка, доступностью или близлежащими объектами.
После завершения предварительных работ наступает черед необходимых юридических действий. Они включают в себя проверку соответствия местным нормам и законодательству. Предоставляются гарантии правильности границ участка и конечного результата работ. Кроме того, предоставляемые услуги подкрепляются гарантией соблюдения всех норм и стандартов, а любые споры могут быть разрешены в соответствии с законом.
На заключительном этапе происходит официальное оформление результатов. Отчет, включающий подробный план границ участка и описание всех необходимых данных, передается в местные органы власти. Эта документация необходима для будущих сделок или любых изменений, касающихся собственности. Стоимость всего процесса зависит от требуемых услуг и сложности расчетов. Цены могут варьироваться в зависимости от местоположения и других факторов, но, как правило, процесс занимает 3-5 рабочих дней.
На протяжении всего процесса клиентам предоставляется полная прозрачность в отношении стоимости и сроков. Услуги направлены на решение любых потенциальных вопросов, связанных с границами земельных участков, гарантируя, что все будет юридически правильно и безопасно для владельца недвижимости.
Последствия нарушения закона
Несоблюдение правил в процессе раздела земли может привести к значительным юридическим и финансовым последствиям. Ниже перечислены основные последствия:
- Юридические штрафы: Нарушение предписанных процедур может привести к штрафам и потенциальным судебным искам. Власти могут наложить штрафные санкции, если при разделе земли не соблюдаются правильные шаги, предусмотренные законом.
- Потеря прав собственности: В крайних случаях невыполнение необходимых действий может привести к лишению прав собственности. Это может произойти, если границы собственности не признаны юридически или не зафиксированы должным образом в официальных документах.
- Увеличение расходов: Несоответствия в планах земельных участков и неправильная документация часто приводят к увеличению расходов. Для исправления ошибок может потребоваться дополнительная работа, что может увеличить общую стоимость процесса.
- Задержки в сделках с землей: Неправильное или неполное оформление документов может привести к задержкам в продаже или передаче собственности. Покупатели и продавцы могут столкнуться с препятствиями при попытке оформить юридические соглашения.
- Сложные споры: Проблемы с границами могут привести к длительным и дорогостоящим судебным спорам с соседями или другими заинтересованными сторонами. Разрешение таких споров часто требует дополнительного юридического вмешательства, что приводит к ненужному стрессу и расходам.
- Недействительная документация: Несоблюдение надлежащих процедур при создании или подаче необходимых документов может привести к признанию договоров или планов недействительными. Это может создать будущие сложности для землевладельцев и застройщиков.
Чтобы избежать этих проблем, убедитесь, что вы выполнили все необходимые действия, такие как наличие правильных планов земельных участков и актуальной документации. Кроме того, важно проконсультироваться с профессионалами, знакомыми с конкретными правилами региона, например, с процессом в Касимове или Рязани, поскольку местные законы и процедуры могут отличаться.
Чтобы получить более подробную информацию о конкретных этапах процесса или получить дополнительную помощь, обратитесь к сертифицированным специалистам, которые смогут разъяснить необходимые требования для вашего проекта.
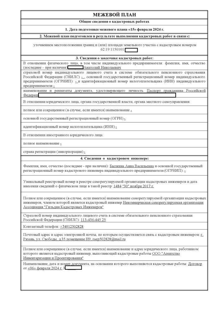
Алгоритм проведения межевания земельного участка
Процесс межевания земельного участка включает в себя ряд этапов, обеспечивающих точность и законность. Первый шаг — нанять профессионального геодезиста, который проведет оценку участка. Вам будет предоставлен подробный план, который поможет определить границы, углы и размеры участка. Цены на услуги геодезистов могут варьироваться, но обычно составляют 3-5 % от общей стоимости участка. На эту плату влияет сложность участка и его местоположение, например, в Касимове, где цены могут несколько отличаться в связи с местными условиями.
После выбора геодезиста наступает следующий этап — определение точных границ участка. Для этого необходимо сравнить текущее состояние участка с предыдущими измерениями и убедиться, что они соответствуют юридическим документам. На этом этапе геодезист будет использовать специализированное оборудование для точного измерения расстояний и углов. Очень важно устранить любые несоответствия на этом этапе, поскольку они могут иметь значительные последствия в будущем.
Третий этап — получение необходимых разрешений. Согласно закону, все границы должны быть официально задокументированы и подтверждены соответствующими органами. Именно здесь могут возникнуть вопросы, особенно если есть расхождения или если речь идет о соседних землях. Рекомендуется проконсультироваться с юристом, чтобы разобраться в возможных правовых проблемах. Процесс согласования может занять некоторое время, поэтому важно все спланировать заранее.
Заключительный этап включает в себя получение официальной документации. После утверждения и регистрации результатов исследования вы получите сертификат, подтверждающий границы и размер вашего участка. Этот официальный документ гарантирует, что участок может быть использован для юридических сделок и целей развития. Любые споры или проблемы, связанные с границами, могут быть легче разрешены при наличии этой документации, что дает четкие гарантии как для владельца участка, так и для потенциальных покупателей.
На протяжении всего процесса очень важно понимать, какие услуги предоставляются. Разные геодезисты могут предлагать различные пакеты услуг, каждый из которых имеет свои преимущества. Некоторые услуги могут включать дополнительные отчеты или поддержку после проведения обследования, что может быть полезно для будущего управления земельными ресурсами. Чтобы избежать непредвиденных расходов или проблем в дальнейшем, необходимо знать полный объем услуг до принятия решения.
Если вы рассматриваете возможность проведения межевания вашего участка, обязательно поинтересуйтесь, какие этапы оно включает, а также каковы стоимость и гарантии. Следуя этим рекомендациям, вы обеспечите плавный и законный процесс, сведя к минимуму возможность возникновения проблем в дальнейшем.
Можно в рассрочку
Да, можно приобрести землеустроительные услуги в рассрочку. Если у вас есть конкретный план и необходимо решить вопрос с оплатой, наша компания предлагает гибкие варианты оплаты. При проведении необходимых процедур по межеванию земли вы можете решить разделить общую стоимость на более мелкие платежи. Основными документами, необходимыми для этого, являются подписанный договор, соответствующие счета и сведения о земельном участке.
Стоимость услуг будет зависеть от нескольких факторов, таких как сложность работ, размер площади и цены на местном рынке в Рязани. Однако после согласования условий оплаты, последствиями несоблюдения сроков оплаты могут стать дополнительные расходы или задержки в завершении проекта. Очень важно понимать весь объем расходов, прежде чем приступать к заключению договора.
Наша команда поможет вам подготовить все необходимые документы, включая четкий график платежей и план проведения землеустроительных работ в соответствии с вашими требованиями. Это позволит вам не только соблюсти действующее законодательство, но и предотвратить возможные нарушения в ходе реализации проекта.
Выбрав вариант рассрочки, вы сможете легко управлять своими финансами и при этом гарантировать, что геодезические работы пройдут гладко и в соответствии с планом. Это практичное решение для клиентов, которым необходима гибкость в вопросах оплаты, но которые не хотят идти на компромисс с качеством и сроками выполнения проекта.
Свяжитесь с нами, чтобы обсудить детали и определить, как мы можем разработать план оплаты в соответствии с вашими потребностями и разрешить любые возможные вопросы о стоимости проекта и условиях предоставления услуг.
Наши проекты
Мы предлагаем индивидуальные решения по планировке и разбивке земельных участков. Наши специалисты разрабатывают подробные планы с учетом ваших индивидуальных потребностей. Процесс начинается с тщательной оценки и четкого описания всех этапов, начиная с первоначальных измерений и заканчивая окончательной планировкой. Специалисты в Касимове проведут вас через все этапы и ответят на любые вопросы, связанные с проектом.
В случаях, когда немедленная оплата невозможна, мы предлагаем гибкие варианты, в том числе рассрочку. Вы можете оплачивать расходы удобными частями, что позволит реализовать проект без задержек. Многие клиенты находят этот вариант удобным для крупных работ.
На протяжении всей работы мы предоставляем гарантии точности расчетов и результатов процедур. Наша команда позаботится о том, чтобы вы понимали последствия каждого этапа до его начала, обеспечивая полную информированность о ходе реализации проекта.
Каждый план разрабатывается с целью избежать осложнений в будущем. В наших договорах четко прописаны обязанности обеих сторон, что обеспечивает прозрачность. Специалисты предоставят вам всю необходимую информацию перед подписанием любого соглашения, что минимизирует риски и потенциальные проблемы.
Мы работали над многочисленными проектами в различных областях, обрабатывая различные типы земель. Нужен ли вам простой раздел участка или более сложный план, наша команда сможет создать идеальное решение, соответствующее вашим требованиям. Все этапы работы просты, и вы можете положиться на нас в том, что мы выполним работу эффективно. Мы часто получаем положительные отзывы от наших клиентов, которые ценят наше стремление к качеству и точности.
Если у вас возникли вопросы или проблемы, не стесняйтесь обращаться к нам. Наши специалисты всегда готовы помочь вам выбрать оптимальный вариант действий и обеспечить бесперебойное выполнение проекта, сведя к минимуму возможные проблемы на этом пути.
Наши гарантии
Наши специалисты представят вам индивидуальные проекты, отвечающие всем требованиям законодательства, гарантируя ваше полное удовлетворение. В течение всего срока действия договора вы будете получать постоянную поддержку и своевременные обновления, касающиеся раздела земли. Кроме того, вы получите точные расчеты, чтобы избежать любых расхождений или задержек на протяжении всего процесса. Доверьте нашей команде оформление всей документации и юридических аспектов, гарантируя гладкий и бесстрессовый опыт.
Если вам необходимо внести изменения или пересмотреть какую-либо часть проекта, мы готовы предложить решения, которые соответствуют вашим потребностям и срокам. Благодаря нашей прозрачности вы всегда будете знать о состоянии работы, а соблюдение сроков обеспечит вам спокойствие, которого вы заслуживаете.
Часто задаваемые вопросы

1. Каковы основные этапы межевания земельного участка?
- Консультация и первичная оценка вашего участка
- Создание плана границ
- Полевые работы геодезиста и проверка точек межевания
- Оформление документации и подача ее в органы власти
2. Сколько времени требуется для завершения процесса?
В среднем на всю процедуру уходит от 3 до 5 недель, в зависимости от сложности и наличия необходимых данных.
Общая стоимость варьируется в зависимости от местоположения, например, в Ржани, Касимове или других регионах, и конкретных требований вашего проекта. Однако вы можете рассчитывать на сумму от 300 до 1000 долларов США за полный комплекс услуг, включая изыскания и официальную регистрацию.
4. Какие факторы влияют на стоимость?
- Размер участка
- Сложность работ и необходимость дополнительных исследований
- Регион, так как цены могут отличаться в Ржанской, Касимовской и других областях
- Наличие существующих данных или необходимость создания новой кадастровой информации.
5. Могу ли я получить гарантию на результаты?
Да, наша компания предоставляет гарантию, что все измерения и данные будут точными, а границы будут официально признаны местными властями.
6. Необходимо ли подписывать договор?
Да, необходимо подписать договор на оказание услуг, чтобы уточнить объем работ, сроки и стоимость, что обеспечит бесперебойное проведение процедуры и четкие ожидания.
7. Каковы возможные последствия неправильного межевания?
- Споры с соседями
- Юридические сложности, связанные с правами собственности
- Потеря времени и денег на исправление ошибок
8. Могу ли я решить вопросы межевания самостоятельно?
Не рекомендуется решать этот вопрос без профессиональной помощи. Обращение к сертифицированному сюрвейеру гарантирует соблюдение юридических процедур и минимизацию рисков.
9. Как я могу рассчитать стоимость этих услуг?
Вы можете воспользоваться нашим онлайн-калькулятором или проконсультироваться с нашими специалистами, чтобы получить точную оценку, основанную на особенностях вашего участка и желаемых услугах.
10. Как я получу окончательные документы?
Готовые документы, включая межевой план и разрешение от властей, будут доставлены вам в виде физических копий или в цифровом виде, в зависимости от ваших предпочтений.
Межевание земельных участков в Касимове

Если вы планируете оформить границы собственности в Касимове, важно следовать четкому и структурированному процессу. Для начала необходимо получить точные данные о земельном участке, который вы собираетесь обозначить. В этом регионе геодезисты оказывают ряд услуг, которые помогут уточнить границы и избежать возможных споров. Вы можете получить необходимые документы, подтверждающие ваши права собственности, и убедиться, что ваша собственность зарегистрирована в правильных границах.
Понимание шагов и этапов работы поможет вам избежать юридических проблем в будущем. Вот типичный алгоритм прохождения процедуры межевания земельного участка в Касимове:
1. Сбор данных: Геодезисты соберут необходимые данные, включая исторические записи о земельных участках, и современные измерения вашей собственности. Это послужит основой для определения точных границ.
2. Процесс геодезической съемки: Используя современное оборудование, специалисты измерят и разметят участок, обеспечив соответствие всех параметров нормам российского законодательства.
3. Оформление документации: После подтверждения измерений подготавливаются соответствующие документы, в том числе межевые документы, в которых указывается местоположение и площадь вашего участка. Эти документы необходимы для регистрации участка в местных органах власти.
4. Завершение межевания: Итоговый отчет включает в себя кадастровый план и официальное свидетельство, подтверждающее ваши границы. На этом этапе вы можете приступить к регистрации земли в государственном кадастровом реестре.
В Касимове существует несколько видов геодезических услуг. Вам может потребоваться полномасштабное межевание или более специфические услуги, такие как уточнение границ или раздел земельного участка на части. Стоимость услуг варьируется в зависимости от сложности и объема работ. Для облегчения процесса может быть предложен план оплаты, в том числе в рассрочку.
Неправильное проведение землеустроительных работ может привести к возникновению имущественных споров или претензий со стороны соседних землевладельцев. Избежать подобных рисков поможет сотрудничество с опытными профессионалами, соблюдающими законодательные нормы. Последствия неправильного оформления документации могут привести к значительным финансовым и юридическим осложнениям.
Если вы хотите решить вопросы с границами участка, не стесняйтесь обращаться за профессиональной помощью. Квалифицированные специалисты подскажут вам, как избежать конфликтов, обеспечить точность и соблюсти соответствующие законы. Всегда следите за тем, чтобы следовать правильному протоколу, чтобы избежать нарушений законодательства.
Чтобы получить дополнительную информацию, услуги или назначить встречу, свяжитесь с местными геодезистами в Касимове. Их опыт и знания помогут вам добиться ясности и спокойствия в отношении границ вашей собственности.
Расчет стоимости за 3-5 минут!
Чтобы быстро рассчитать стоимость вашего проекта, воспользуйтесь онлайн-инструментами, которые оценивают цены по заданным критериям. В течение 3-5 минут вы получите точную цифру, отражающую стоимость раздела земли и сопутствующих услуг. Цены определяются местным законодательством и особенностями земельного участка, например, его расположением в Рязани или Касимове. В расчет также входит примерная стоимость проектов и дополнительных мероприятий, которые могут потребоваться в процессе.
Каждый этап раздела земли предполагает различные расходы, в том числе административные, землеустроительные и другие сопутствующие работы. Например, если вы работаете с землей в Рязани, цены могут варьироваться в зависимости от близости к городу, в то время как участки в Касимове могут стоить по-другому из-за региональных различий. Точные цифры уточняйте у профессионалов в вашем регионе.
Ключевые преимущества: Возможность оперативно рассчитать расходы поможет вам избежать задержек и эффективно спланировать дальнейшие действия. Вы получите четкое представление о финансовых требованиях и сможете принимать взвешенные решения. Рассчитанная цена отражает объем работ, включая юридические аспекты, составление карт и определение границ. Четкая оценка стоимости поможет вам решить любые возможные вопросы, связанные с землей или деталями проекта.
Завершив процесс расчета стоимости за несколько минут, вы сможете быстрее принимать решения. Если у вас возникнут сомнения или потребуются разъяснения, не стесняйтесь спрашивать подробности о ценах, требованиях и возможных последствиях. Лучше понять структуру цен заранее, чем потом столкнуться с непредвиденными расходами.
Получите смету и планируйте свою работу соответственно. При правильном подходе вы избежите ненужных осложнений и сможете спокойно приступить к работе.
Расскажите нам о своей проблеме, и наши специалисты постараются ее решить
Если у вас возникли проблемы с границами участка, наша команда в Рязани или Касимове готова прийти на помощь. Мы разбираемся в юридических сложностях и поможем разрешить любые споры, связанные с межеванием земли. Если вы столкнулись с какими-либо нарушениями, например, с неправильным оформлением документации или ошибками в межевых расчетах, важно действовать быстро, чтобы избежать долгосрочных последствий.
Наши специалисты тщательно изучат детали вашего дела, включая договор, данные и любые сопутствующие документы. На основе ваших данных мы составим подробный план и рассчитаем необходимые корректировки. Во многих случаях мы предлагаем гибкие варианты оплаты, в том числе рассрочку. Алгоритм решения этих проблем понятен, и мы будем информировать вас на каждом этапе.
Распространенные проблемы часто возникают из-за устаревших или неправильных планов проекта, что приводит к спорам и задержкам. Чтобы избежать этих проблем, важно проконсультироваться со специалистами, которые помогут вам разобраться в юридических тонкостях определения границ. Мы гарантируем, что наша работа будет соответствовать всем соответствующим законам и нормам, что даст вам гарантию точного результата.
Где бы вы ни находились — в Рязани или Касимове — наши специалисты готовы ответить на любые вопросы и предложить решения, соответствующие вашим потребностям. Мы постараемся найти оптимальные цены и наиболее эффективные способы решения вашего вопроса, гарантируя правильное и оперативное оформление всех документов.
В случае возникновения каких-либо проблем, не стесняйтесь обращаться к нам. Наша команда ответит в течение нескольких минут, готовая решить все вопросы и начать работу над планом, который соответствует вашей ситуации. Мы поможем вам избежать проблем в будущем и гарантируем беспроблемное решение проблемы с вашей недвижимостью.
Мы оказываем полный спектр услуг по обеспечению правильного разделения и документирования земельных участков. Наша команда готова решить самые распространенные проблемы, возникающие в ходе этих процессов, включая нарушения правил землепользования и несоответствия официальным документам.
- Гарантии соблюдения всех местных и федеральных законов, касающихся землеустройства.
- Точный расчет площади земельных участков и составление точных проектных планов с учетом ваших пожеланий.
- Мы предлагаем гибкие варианты оплаты, в том числе рассрочку, чтобы сделать услугу более доступной.
- Наши специалисты следят за тем, чтобы все необходимые документы были правильно заполнены и поданы в соответствии с действующим законодательством.
- Мы решаем возможные юридические вопросы, предотвращая будущие осложнения и минимизируя риски штрафных санкций.
В случае возникновения сложностей или споров мы готовы помочь вам в решении любых вопросов, которые могут возникнуть в ходе процесса. Наша команда неустанно работает над тем, чтобы избежать любых ошибок, которые могут повлиять на конечный результат. Вы всегда будете проинформированы о состоянии вашего дела, и мы своевременно ответим на ваши вопросы.